Lokal usługowy na wynajem, ul. Mickiewicza

Lokal handlowy/usługowy na wynajem
14 900,00 PLN , Pow. 200 m2
Drukuj ofertę
Drukuj ofertę
Typ nieruchomości:
Komercyjny
Powierzchnia:
200 m2
Typ transakcji:
wynajem
Liczba pokoi:
6
Lokalizacja:
Poznań , Adama Mickiewicza
Rok budowy:
2021
Piętro:
0 na 6
Numer oferty:
860523
Cena za m2:
74,50 PLN
!! OFERTA DOSTĘPNA TYLKO U NAS !!

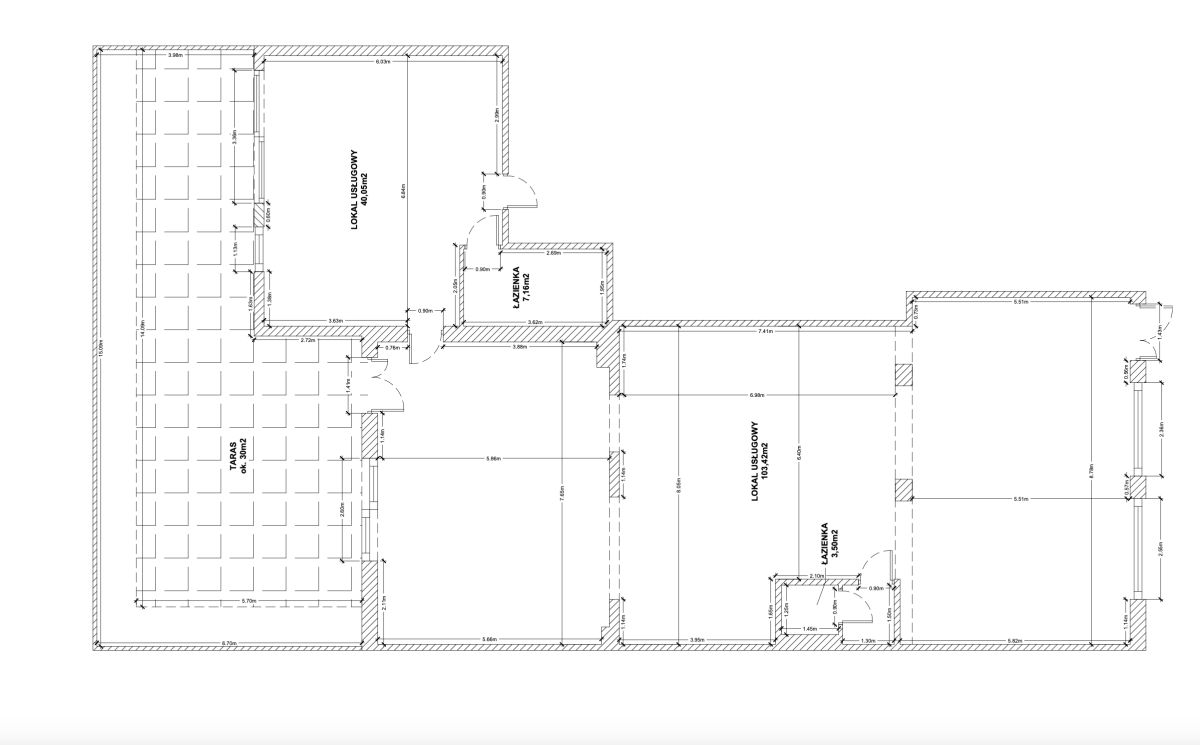
Do wynajęcia wyjątkowy, przestronny i nowoczesny lokal usługowy o powierzchni ok. 200 m², położony na parterze prestiżowego budynku z 2021 roku przy ul. Mickiewicza 17. Lokal został starannie wykończony i dzięki swojej powierzchni oraz układowi pomieszczeń jest idealnym miejscem do prowadzenia restauracji, kawiarni lub innego rodzaju działalności gastronomicznej czy usługowej.

Najważniejsze atuty lokalu:


  • Duże przeszklone witryny od strony ulicy - zapewniają doskonałą ekspozycję lokalu i naturalne doświetlenie wnętrza.

  • Duży taras - idealny do zagospodarowania jako ogródek restauracyjny lub przestrzeń eventowa.

  • Osobny budynek na kuchnię lub magazyn - z dostępem do łazienki dla pracowników oraz z własnym, niezależnym wejściem. Wejście może odbywać się zarówno z klatki prywatnej, jak i z zewnątrz, co znacznie ułatwia dostawy i logistykę prowadzenia działalności.

  • Dwie łazienki - jedna przeznaczona dla klientów, druga dla pracowników, co zwiększa komfort użytkowania lokalu.

  • Wysoki standard wykończenia - lokal przygotowany do indywidualnej aranżacji zgodnie z potrzebami najemcy.

  • Rok budowy 2021 - nowoczesny, reprezentacyjny budynek, który podnosi prestiż prowadzonej działalności.



Lokalizacja:
Mickiewicza 17 to atrakcyjna, dobrze skomunikowana część miasta. Lokal znajduje się przy ulicy o dużym natężeniu ruchu, zarówno samochodowego, jak i pieszego, co gwarantuje doskonałą widoczność i potencjał biznesowy. W okolicy znajdują się liczne punkty usługowe, biura i zabudowa mieszkaniowa, co generuje stały przepływ potencjalnych klientów.
Cena najmu: 14 900 PLN netto

Możliwość kilku miejsc postojowych 

Dlaczego warto?
To propozycja dla osób poszukujących lokalu o ponadprzeciętnym standardzie, z ogromnym potencjałem gastronomicznym i usługowym. Duża powierzchnia, funkcjonalny układ, taras, osobny budynek na kuchnię lub magazyn oraz świetna lokalizacja czynią tę ofertę unikalną na rynku.

**Informacja dla pośredników - współpracujemy przy każdej ofercie.
Nieprawidłowy adres E-mail