Rozkładowe mieszkanie w rewitalizowanej kamienicy

Mieszkanie na sprzedaż
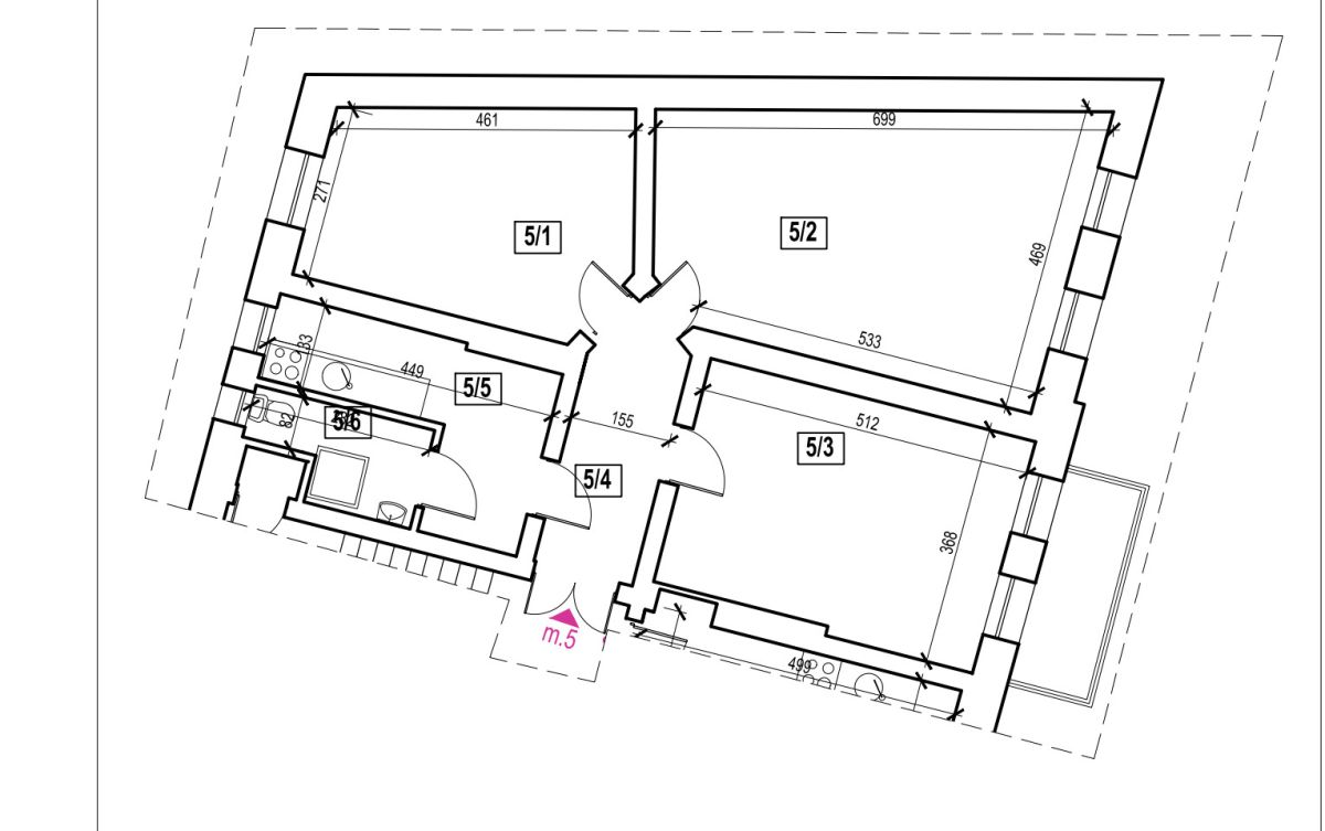
610 000,00 PLN , Pow. 79,53 m2
Drukuj ofertę
Drukuj ofertę
Typ nieruchomości:
Mieszkanie
Powierzchnia:
79,53 m2
Typ transakcji:
sprzedaż
Liczba pokoi:
3
Lokalizacja:
Poznań Wilda , 28 Czerwca 1956 r.
Rok budowy:
1918
Piętro:
2 na 4
Numer oferty:
872455
Cena za m2:
7 670,06 PLN

Polecam na sprzedaż przestronne mieszkanie o powierzchni 79,53 m², położone na II piętrze w kamienicy będącej w trakcie kompleksowej rewitalizacji. To propozycja dla osób, które szukają klimatu starej zabudowy, ale z odświeżoną substancją budynku i uporządkowaną częścią wspólną.

Rewitalizacja budynku obejmuje m.in.:
- odnowienie elewacji,
- remont dachu,
- modernizację klatek schodowych,
- uporządkowanie i wymianę instalacji w częściach wspólnych.

Dzięki temu zyskujesz klasyczny klimat kamienicy bez typowych problemów technicznych, które często odstraszają inwestorów.

Metraż 79,53 m² daje szerokie możliwości aranżacyjne:

- komfortowe mieszkanie 3-pokojowe dla rodziny,
- przestronny apartament z gabinetem do pracy,
- podział na dwa mniejsze lokale (po analizie technicznej) pod inwestycję.

Wysokie pomieszczenia charakterystyczne dla kamienic pozwalają uzyskać poczucie przestrzeni, którego brakuje w nowym budownictwie.

Lokalizacja 
Wilda w ostatnich latach przeszła widoczną metamorfozę. To dzielnica:
- dobrze skomunikowana z centrum,
- z rozwiniętą infrastrukturą handlowo-usługową,
- atrakcyjna zarówno do zamieszkania, jak i pod wynajem.

Rewitalizowane kamienice w tej części miasta systematycznie zyskują na wartości -  szczególnie przy rosnącym popycie na mieszkania z charakterem.


*informacja dla pośredników - współpracujemy przy każdej ofercie 
Nieprawidłowy adres E-mail